W66利来国际(中国区)股份有限公司
W66利来国际
/>
/>
现代厨房
产品中心
油烟机
燃气灶
燃气热水器
净水器
集成灶
消毒柜
蒸烤箱
洗碗机
集成水槽洗碗机
招商加盟
品牌
服务
资讯
工程大客户
class="header-c2">
MENU
获取更多产品
CXW-200-5Q81
27m³/min吸力大
1050Pa排烟强
麦穗快拆油网易清洁
CXW-300-3T39-Z3
350mm超薄厚度
24m³/min超大风量
480Pa超大风压
CXW-260-3T83-Z3P
350mm超薄厚度
28m³/min超大风量
1100Pa超大风压
CXW-260-3T69-Z5
350mm超薄厚度
25m³/min大吸力
1050Pa超大静压
获取更多产品
JZ(Y/T)-6T65B
聚焰猛火科技
5.2kW迅猛大火力
8段控火
JZ(Y/T)-667B
智控生活随心丨烹饪状态实时监控丨安全防护生活无忧
JZ(Y/T)-665B
定时自动熄火丨180min调节丨自适应底盘
JZ(Y/T)-660B
八段控火
0秒点火
4.6kW大火力
厨后易清洁
获取更多产品
JSQ25-537R-13
全铜水箱
一键增容14L
4分段微火苗精控恒温
JSQ30-535R-16
智感温控
五重安全巡防
直流变频电机
JSQ27-533R-14
直流变频 丨 低音运行 丨健康净浴
JSQ31-532R-16
智能变频
一键增容
安全恒温
获取更多产品
PRU600-027J
泉净芯净水科技
600G大通量双出水
4年长效RO滤芯
PRU600-067J
双膜洗饮不串水丨3倍速净芯长效丨检视水质不弯腰
Y-SR-20-07G
三秒速热
六档调温
台挂两用
PRC80-033J
省心
快捷
省钱
获取更多产品
JJZ(Y/T)-9T61FX
「零』距离贴墙
1000Pa大静压
125L全腔一体消毒
JJZ(Y/T)-9T61FT
「零』距离贴墙
1000Pa大静压
5.0kW大火力
JJZ(Y/T)-939FT
1100Pa大风压
5.2kW大火力
78L蒸烤炸箱
JJZ(Y/)T-9T08FX
消烘储一站解决
母婴级杀菌呵护
八大安全守护
获取更多产品
ZTD105B-510
超大容积
智能预约
童锁设计
ZTD105B-505
超大容积
循环消毒
智能预约
ZTD90B-503
获取更多产品
ZKQS-40-208T
11种蒸烤模式
40L大容量
4+1多维烤管
获取更多产品
088W
15套大容量
热风烘干
120h储存
083W
装的多
72℃高温洗
99.99%杀菌
获取更多产品
JW-W153D
26000Pa丨72℃杀菌丨1级干燥丨10套容量丨52L双槽丨52L储物
JW-W183D
集成水路
一体台面
真10套
JO-C151D
304不锈钢
橱柜无缝一体
空间增容16%
产品详情
技术参数
安装示意
视频
1100Pa大风压
5.2kW大火力
78L蒸烤炸箱
JJZ(Y/T)-939FT
爆炒大吸力集成灶
¥26998
产品详情
2大创新突破
集成科技大吸力,解决油烟,健康之选
智能烹饪系统
智能烹饪系统,让厨房小白变大厨
1100Pa超大风压
智能直流变频电机以2000转/min高速测算自动感应烟道阻力变化,精准调节电机动力,时刻保持恒定有效排量,排烟高效更节能
5.2kW超大火力
5.2kW猛火,均匀出火散热少,升温迅速,爆炒鲜香快熟不夹生,好滋味不等待
78L豪华蒸烤炸箱
78升奢华容量搭配4层搁架,一次容量多道菜品,快速搞定满桌美食,兼顾家人不同口味需求
一体抗垢搪瓷内胆
采用一体抗垢搪瓷内腔,比不锈钢内胆更耐高温,不变色,比陶瓷内胆更耐磨,烹饪后轻松擦拭污渍,腔体焕然一新
鲜汽澎湃蒸
鲜汽澎湃蒸 锁住食材鲜味
蒸汽孔瞬间产生大量高温蒸汽粒子,如龙卷风般的包裹住食物,营养不流失,倍享鲜美
3D立体烤
3D立体烤,均衡温场,立体上色
腔体内三面分布5根烤管,搭配钛合金风扇,形成热量循环,食材每一面都受热均匀,烤色一致,避免局部烤焦
脱脂空气炸
脱脂空气炸,好吃不油腻
釆用高温脱脂的方式,既无需添加额外的油,又能把食物本身的油炸出来,皮脆肉嫩更健康
ROKI智能操控
共享老板电器ROKI智能系统,手机控制,一键烹饪
零积油免拆洗
98.5%油路排油率,双层V型风道
7大辅助功能
7大辅助功能,细微便捷不止蒸烤
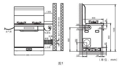
尺寸参数
外形尺寸(长X宽X高)
(895*600*1335)mm
电源
220V~50Hz
标称风压
500Pa
最大静压
1100Pa
强档风量
18m³/min
爆炒档风量
20m³/min
常态气味降低度
≥98%
爆炒档噪声
66dB
燃气灶热效率(%)
65
额定热负荷(天然气)
5.2KW
额定热负荷(液化气)
4.8KW
燃气灶能效等级
一级
蒸烤箱额定功率
3000W
蒸烤箱容积
78L
安装图解
JJZ(Y/T)-9T61FX
JJZ(Y/T)-9T61FT
JJZ(Y/T)-936FT
JJZ(Y/T)-939FT
JJZ(Y/T)-936FX
JJZ(Y/T)-9T08FT
JJZ(T/Y)-FT12A
JJZ(T/Y)-913FT
JJZ(Y/)T-9T08FX
JJZ(T/Y)-906FX
JJZ(T/Y)-905FX
JJZ(T/Y)-905FZ
JJZ(T/Y)-902FX
JJZ(T/Y)-902FD
JJZY-937FX
W66利来国际