W66利来国际(中国区)股份有限公司
W66利来国际
/>
/>
现代厨房
产品中心
油烟机
燃气灶
燃气热水器
净水器
集成灶
消毒柜
蒸烤箱
洗碗机
集成水槽洗碗机
招商加盟
品牌
服务
资讯
工程大客户
class="header-c2">
MENU
获取更多产品
CXW-200-5Q81
27m³/min吸力大
1050Pa排烟强
麦穗快拆油网易清洁
CXW-300-3T39-Z3
350mm超薄厚度
24m³/min超大风量
480Pa超大风压
CXW-260-3T83-Z3P
350mm超薄厚度
28m³/min超大风量
1100Pa超大风压
CXW-260-3T69-Z5
350mm超薄厚度
25m³/min大吸力
1050Pa超大静压
获取更多产品
JZ(Y/T)-6T65B
聚焰猛火科技
5.2kW迅猛大火力
8段控火
JZ(Y/T)-667B
智控生活随心丨烹饪状态实时监控丨安全防护生活无忧
JZ(Y/T)-665B
定时自动熄火丨180min调节丨自适应底盘
JZ(Y/T)-660B
八段控火
0秒点火
4.6kW大火力
厨后易清洁
获取更多产品
JSQ25-537R-13
全铜水箱
一键增容14L
4分段微火苗精控恒温
JSQ30-535R-16
智感温控
五重安全巡防
直流变频电机
JSQ27-533R-14
直流变频 丨 低音运行 丨健康净浴
JSQ31-532R-16
智能变频
一键增容
安全恒温
获取更多产品
PRU600-027J
泉净芯净水科技
600G大通量双出水
4年长效RO滤芯
PRU600-067J
双膜洗饮不串水丨3倍速净芯长效丨检视水质不弯腰
Y-SR-20-07G
三秒速热
六档调温
台挂两用
PRC80-033J
省心
快捷
省钱
获取更多产品
JJZ(Y/T)-9T61FX
「零』距离贴墙
1000Pa大静压
125L全腔一体消毒
JJZ(Y/T)-9T61FT
「零』距离贴墙
1000Pa大静压
5.0kW大火力
JJZ(Y/T)-939FT
1100Pa大风压
5.2kW大火力
78L蒸烤炸箱
JJZ(Y/)T-9T08FX
消烘储一站解决
母婴级杀菌呵护
八大安全守护
获取更多产品
ZTD105B-510
超大容积
智能预约
童锁设计
ZTD105B-505
超大容积
循环消毒
智能预约
ZTD90B-503
获取更多产品
ZKQS-40-208T
11种蒸烤模式
40L大容量
4+1多维烤管
获取更多产品
088W
15套大容量
热风烘干
120h储存
083W
装的多
72℃高温洗
99.99%杀菌
获取更多产品
JW-W153D
26000Pa丨72℃杀菌丨1级干燥丨10套容量丨52L双槽丨52L储物
JW-W183D
集成水路
一体台面
真10套
JO-C151D
304不锈钢
橱柜无缝一体
空间增容16%
产品详情
技术参数
安装示意
视频
1100Pa大风压
ROKI智能烹饪
蒸汽直喷蒸烤炸一体
JJZ(Y/T)-936FT
集成美食家 智享蒸烤炸
¥16999
产品详情
直流变频无刷电机 排烟高效更节能
智能直流变频电机以2000转/min高速测算,自动感应烟道阻力,精准调节电机动力,时刻保持恒定有效排烟。
98.5%油路排油率
斜面精准导油,内腔免拆洗
鲜蒸嫩烤空气炸
鲜蒸嫩烤空气炸,一日三餐轻松达
5.2kW猛火爆炒 65%燃烧效率
5.2kW猛火均匀出火,上进风设计,搭载281个出火口,65%的燃烧效率,爆炒鲜香快熟不夹生,好滋味不等待
共享老板ROKI智能APP
共享老板ROKI智能APP 手机操作更便捷
钢琴台面置物云台
老板电器国家级工业设计中心 亮黑色钢琴漆面置物台,搭配跑道圆侧翼 优雅与速度的完美融合,诠释厨房非凡意义
尺寸参数
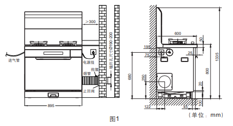
外形尺寸(长X宽X高)
(895*600*1300)mm
电源
220V~50Hz
标称风压
500Pa
最大静压
1100Pa
强档风量(m³/min)
18
爆炒档风量(m³/min)
20
常态气味降低度(%)
≥98
爆炒档噪声
56dB
燃气灶热效率(%)
65
额定热负荷(天然气)
5.2KW
额定热负荷(液化气)
4.8KW
燃气灶能效等级
一级
蒸烤箱额定功率
3000W
蒸烤箱容积
78L
安装图解
/>
/>
/>
JJZ(Y/T)-9T61FX
JJZ(Y/T)-9T61FT
JJZ(Y/T)-936FT
JJZ(Y/T)-939FT
JJZ(Y/T)-936FX
JJZ(Y/T)-9T08FT
JJZ(T/Y)-FT12A
JJZ(T/Y)-913FT
JJZ(Y/)T-9T08FX
JJZ(T/Y)-906FX
JJZ(T/Y)-905FX
JJZ(T/Y)-905FZ
JJZ(T/Y)-902FX
JJZ(T/Y)-902FD
JJZY-937FX
W66利来国际